hello@katehenningplantingdesign.co.uk
https://www.katehenningplantingdesign.co.uk
Kate Henning Planting Design
07738765716
Graduation year: 2024/25 PDD, 2025/26 CiP
Kate Henning
I am obsessed with Nature. We have so much to learn from the natural world and every day I am in contact with it in one way or another. I maintain a few carefully selected gardens as well as design them and I think that daily contact with the soil and plants is extremely important to keep things real and not completely disappear down the rabbit hole of fanciful design. I live on the Thames on my houseboat called Luisa. My garden is the riverbank.
My design philosophy is free flowing in some ways as my mind is very open to ideas but I strongly uphold the ‘right plant,right place’ sentiments of the great Beth Chatto. Put simply, if you don’t follow this sentiment the plants won’t thrive and without happy plants there is no garden.
Biography:
My working life began as a Chartered Architectural Technologist in 1994. My job was to take designs for buildings, whether homes or underground stations for London Underground, and make those designs buildable by creating working drawings by hand. When CAD was introduced I started to lose interest because it was the drawing process that I enjoyed. It gave me time to think and work through problems with the design. It must be said though that CAD does make life a little easier in many ways so I am embracing the good bits but continuing to draw by hand in the main.
My horticultural career started in 2014 when I launched my garden maintenance business. I am self taught and until I started to learn with LCGD I had no formal qualifications. Although I had 11 years of hands on gardening experience and over 30 years of drawing experience, I was still unsure of my capabilities when I was accepted on the Planting Design Diploma course. The breadth of knowledge and experience of my classmates was pretty daunting and the quality of teaching, guest speakers and tutors was impressive to say the least. I decided right from day one that if I was going to invest my money and 2 days a week in this course I was going to give it 100%. What I didn’t expect was to completely fall in love with it.
I am proud to say that I have recently been awarded my Diploma with Distinction.Like any successful relationship it was a bit of a slog at times but I never stopped loving it. Learning my craft with a group of amazing people in the middle of Royal Botanic Gardens, Kew…what’s not to love? I am soon to start the Certificate in Plantsmanship with LCGD too. I can’t wait.
I know that I will never stop learning. The world of plants never stands still long enough for us humans to ever catch up and that is the wonder and joy of horticulture.
Instagram: @katehenningplantingdesign
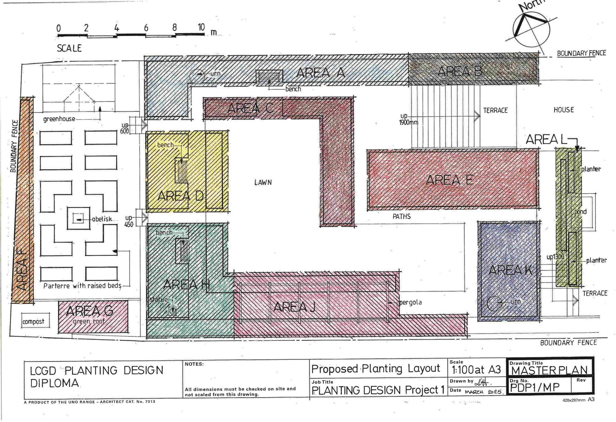
A comprehensive planting design. The client, site location and site conditions were completely unspecified and left to me to choose. I chose to create a garden in Grasse, SE France for the late but legendary French chanteuse Edith Piaf. She had a tough and short life and I wanted to create something special as if she were still alive to enjoy it. My Master Plan was divided into character areas, each depicting a specific and meaningful time in her life and so my Planting Plans illustrate my narrative and my Client Brief and reflect the garden’s location in the South East corner of France.